- ©MLS 1004290
- Area 910 sq ft
- Bedrooms 2
- Bathrooms 2
- Parkings 2
Description
Looking for quiet, easy living in a well-kept community? This 2-bedroom, 2-bathroom mobile home offers a great layout with a spacious open-concept kitchen, dining, and living area. Built in 2010 and located in a peaceful 55+ adult-oriented park in Saltair, this home sits on a well-kept pad and features a private patio and open yard space—perfect for gardening or relaxing outdoors. Both bedrooms are a generous size, and having two full bathrooms adds extra flexibility. This small, well-run mobile home park allows for one small dog or indoor cat, making it a great option for those seeking low-maintenance living with a friendly, community feel. Measurements approx, buyers to verify. (id:48970) Show More
Details
- Constructed Date: 2010
- Property Type: Single Family
- Type: Manufactured Home
- Total Finished Area: 910 sqft
- Neighbourhood: Saltair
- Maintenance Fee: 475.00/Monthly
Features
- Forced air
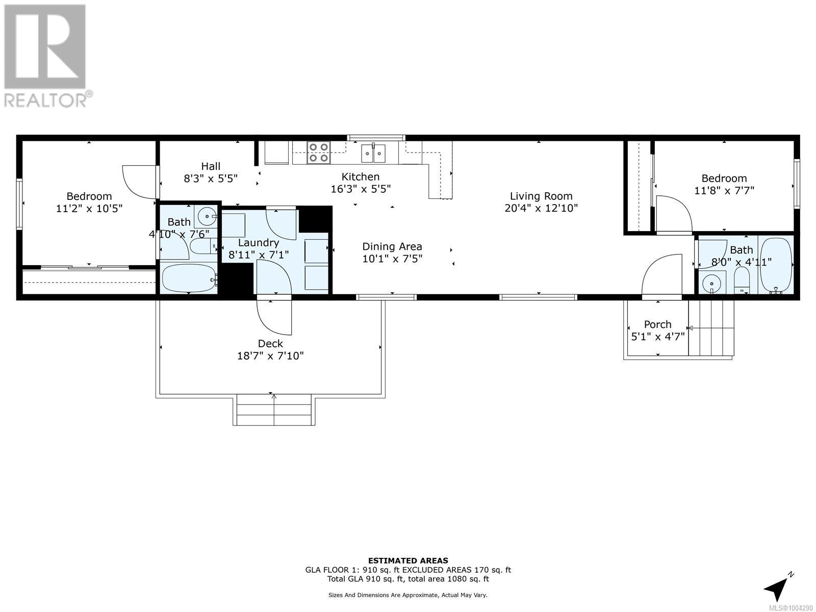
Rooms Details For B 10860 Chemainus Rd
| Type | Level | Dimension |
|---|---|---|
| Primary Bedroom | Main level | 11'2 x 10'5 |
| Bedroom | Main level | 11'8 x 7'7 |
| Bathroom | Main level | 8'0 x 4'11 |
| Bathroom | Main level | 4'10 x 7'6 |
| Laundry room | Main level | 8'11 x 7'1 |
| Dining room | Main level | 10'1 x 7'5 |
| Kitchen | Main level | 16'3 x 5'5 |
| Living room | Main level | 20'4 x 12'10 |
Location
Similar Properties
For Sale
$ 275,000 $ 297 / Sq. Ft.
- 997991 ©MLS
- 2 Bedroom
- 1 Bathroom
For Sale
$ 1,129,900 $ 354 / Sq. Ft.
- 1005179 ©MLS
- 2 Bedroom
- 3 Bathroom
For Sale
$ 1,999,900 $ 606 / Sq. Ft.
- 1004141 ©MLS
- 2 Bedroom
- 3 Bathroom
This REALTOR.ca listing content is owned and licensed by REALTOR® members of The Canadian Real Estate Association
Data provided by: Vancouver Island Real Estate Board



