- ©MLS R3016813
Description
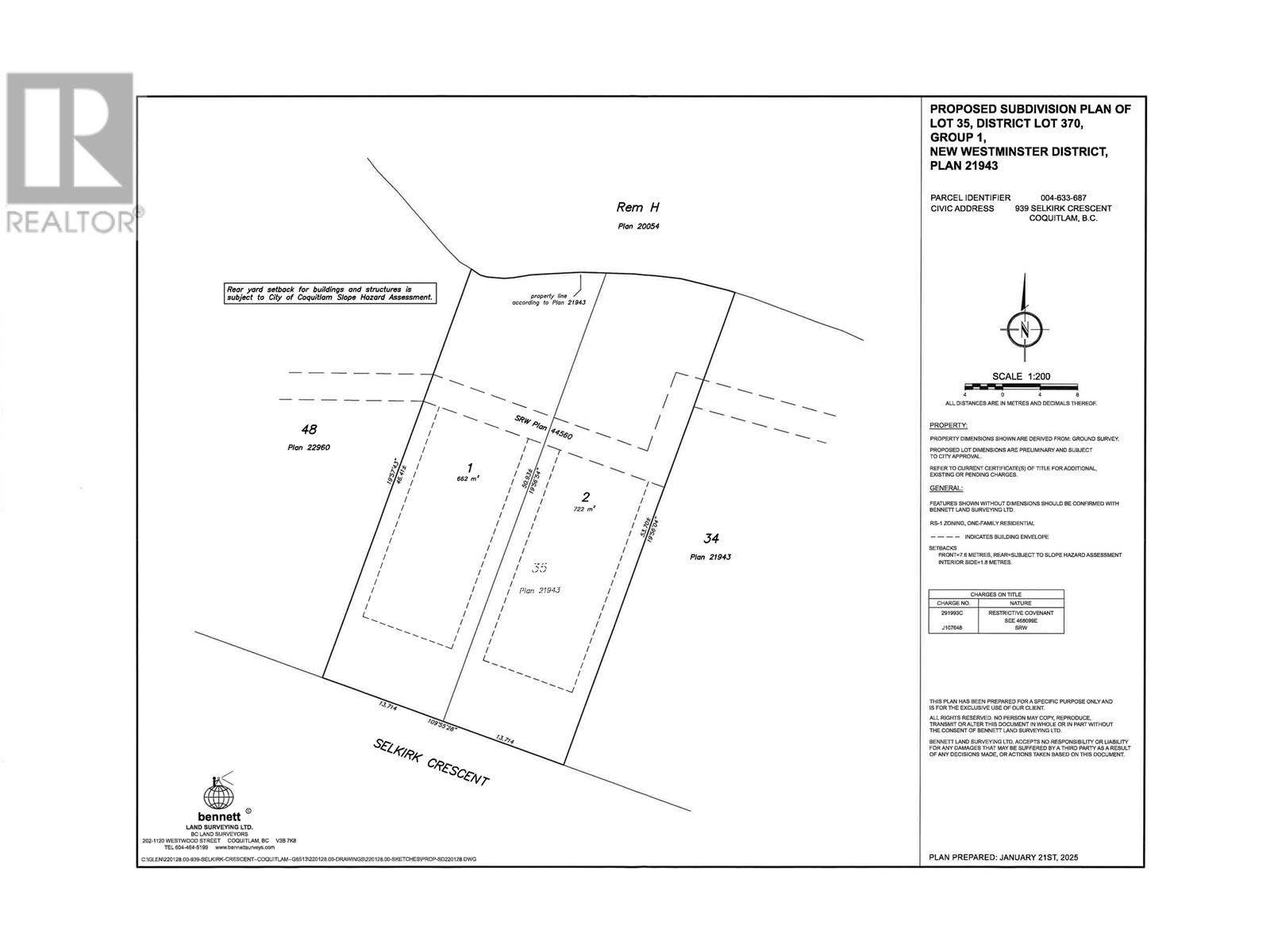
Approved 2 lot sub-division, PLA in place for 2, 45' x 160' Green Belt lots. Selkirk Cres. is one Coquitlam's most premier streets. Build your dream home and hold the second lot for the future or build 2 side by side. 2 Lots like this will never be available on this street again. (id:48970) Show More
Details
- Property Type: Vacant Land
Ammenities + Nearby
- Recreation
- Shopping
- Recreation
- Shopping
Features
- Central location
- Private setting
Location
Similar Properties
For Sale
$ 2,825,000 $ 911 / Sq. Ft.
- R3016816 ©MLS
- 0 Bedroom
- 3 Bathroom
For Sale
$ 1,775,000 $ 734 / Sq. Ft.
- R3003277 ©MLS
- 4 Bedroom
- 3 Bathroom
For Sale
$ 3,498,000 $ 637 / Sq. Ft.
- R3021768 ©MLS
- 8 Bedroom
- 9 Bathroom
This REALTOR.ca listing content is owned and licensed by REALTOR® members of The Canadian Real Estate Association
Data provided by: Real Estate Board Of Greater Vancouver


