- ©MLS 1005210
- Area 3655 sq ft
- Bedrooms 5
- Bathrooms 4
- Parkings 4
Description
Spacious Ocean View Family Home with In-Law Suite – A Rare Find in Ladysmith! This breathtaking 5-bedroom + den, 3163 sq. ft. family home is nestled on a quiet cul-de-sac in one of Ladysmith’s most desirable neighborhoods. Enjoy ocean views, peace and privacy, all while being just minutes from shops, schools, parks, and other amenities. Bright and beautifully designed, this home is filled with natural light, creating a warm and welcoming atmosphere throughout. The main home features hardwood, ceramic tile, and carpeted flooring, along with an expansive dream kitchen any home chef would love—boasting granite countertops, high-end stainless-steel appliances, and modern white cabinetry. Perfect for families and entertainers alike, the spacious living and dining areas offer sweeping ocean views and direct access to decks and outdoor living spaces at both the front and back of the home—ideal for relaxing or hosting guests. Adding incredible flexibility is a separate-entry in-law suite that can be configured as either a 1- or 2-bedroom unit. Use it as a mortgage helper, a private space for extended family, or guest accommodation. This home truly has it all: a peaceful setting, versatile layout, stunning views, and thoughtful finishes throughout. With its rare combination of size, style, and location, this gem won’t last long—book your showing today! (id:48970) Show More
Details
- Constructed Date: 2008
- Property Type: Single Family
- Type: House
- Total Finished Area: 3273 sqft
- Neighbourhood: Ladysmith
Features
- Mountain view
- Ocean view
- Air Conditioned
- Forced air
- Heat Pump
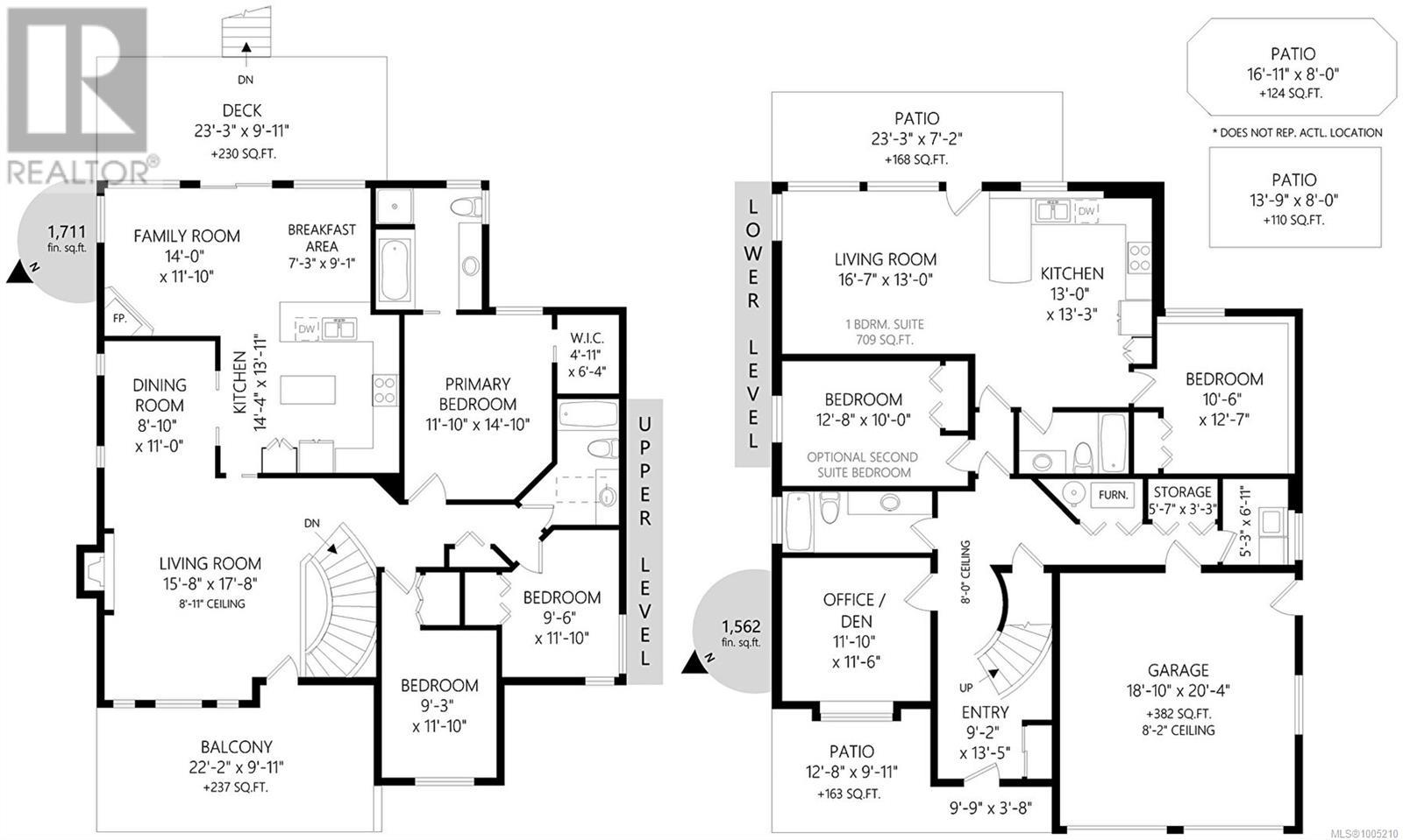
Rooms Details For 606 Stevens Pl
| Type | Level | Dimension |
|---|---|---|
| Storage | Lower level | 5'7 x 3'3 |
| Laundry room | Lower level | 5'3 x 6'11 |
| Bathroom | Lower level | 4-Piece |
| Den | Lower level | 11'10 x 11'6 |
| Bathroom | Lower level | 3-Piece |
| Bedroom | Lower level | 12'8 x 10'0 |
| Bedroom | Lower level | 10'6 x 12'7 |
| Living room | Lower level | 16'7 x 13'0 |
| Kitchen | Lower level | 13'0 x 13'3 |
| Bedroom | Main level | 9'3 x 11'10 |
| Bedroom | Main level | 9'6 x 11'10 |
| Ensuite | Main level | 4-Piece |
| Primary Bedroom | Main level | 11'10 x 14'10 |
| Bathroom | Main level | 4-Piece |
| Eating area | Main level | 7'3 x 9'1 |
| Family room | Main level | 14'0 x 11'10 |
| Living room | Main level | 15'8 x 17'8 |
| Dining room | Main level | 8'10 x 11'0 |
| Kitchen | Main level | 14'4 x 13'11 |
Location
This REALTOR.ca listing content is owned and licensed by REALTOR® members of The Canadian Real Estate Association
Data provided by: Vancouver Island Real Estate Board



