- ©MLS R2996201
Description
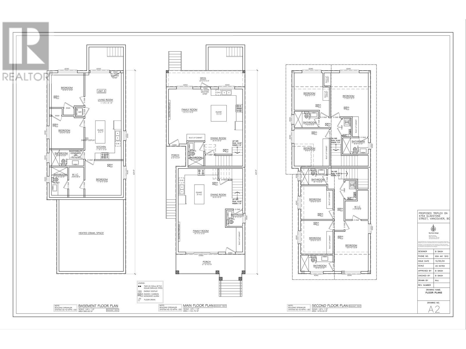
Introducing an outstanding development opportunity located in the thriving Norquay Village of Vancouver. The current owner has plan to build a triplex. This property is zoned RM-9A under the Norquay Village Neighbourhood Centre Plan, presenting a versatile foundation for various residential projects, including four-storey low-rise apartments, stacked townhouses, duplexes, triplexes, or a single-family residence. Positioned strategically near major transit routes, schools, parks, and vibrant shopping areas, this site is exceptionally suited for developers focused on creating lasting value. Moreover, exploring land assembly with adjacent properties could significantly increase density and contribute to the city´s vision for sustainable community development. Please ensure to verify all information with the City for the most accurate details. (id:48970) Show More
Details
- Property Type: Vacant Land
Ammenities + Nearby
- Recreation
- Shopping
- Recreation
- Shopping
Features
- Central location
Location
Similar Properties
For Sale
$ 829,888 $ 938 / Sq. Ft.
- R2976352 ©MLS
- 2 Bedroom
- 2 Bathroom
For Sale
$ 548,000 $ 966 / Sq. Ft.
- R2813138 ©MLS
- 1 Bedroom
- 1 Bathroom
For Sale
$ 499,000 $ 1,033 / Sq. Ft.
- R3019206 ©MLS
- 1 Bedroom
- 1 Bathroom
This REALTOR.ca listing content is owned and licensed by REALTOR® members of The Canadian Real Estate Association
Data provided by: Real Estate Board Of Greater Vancouver


