- ©MLS R3017172
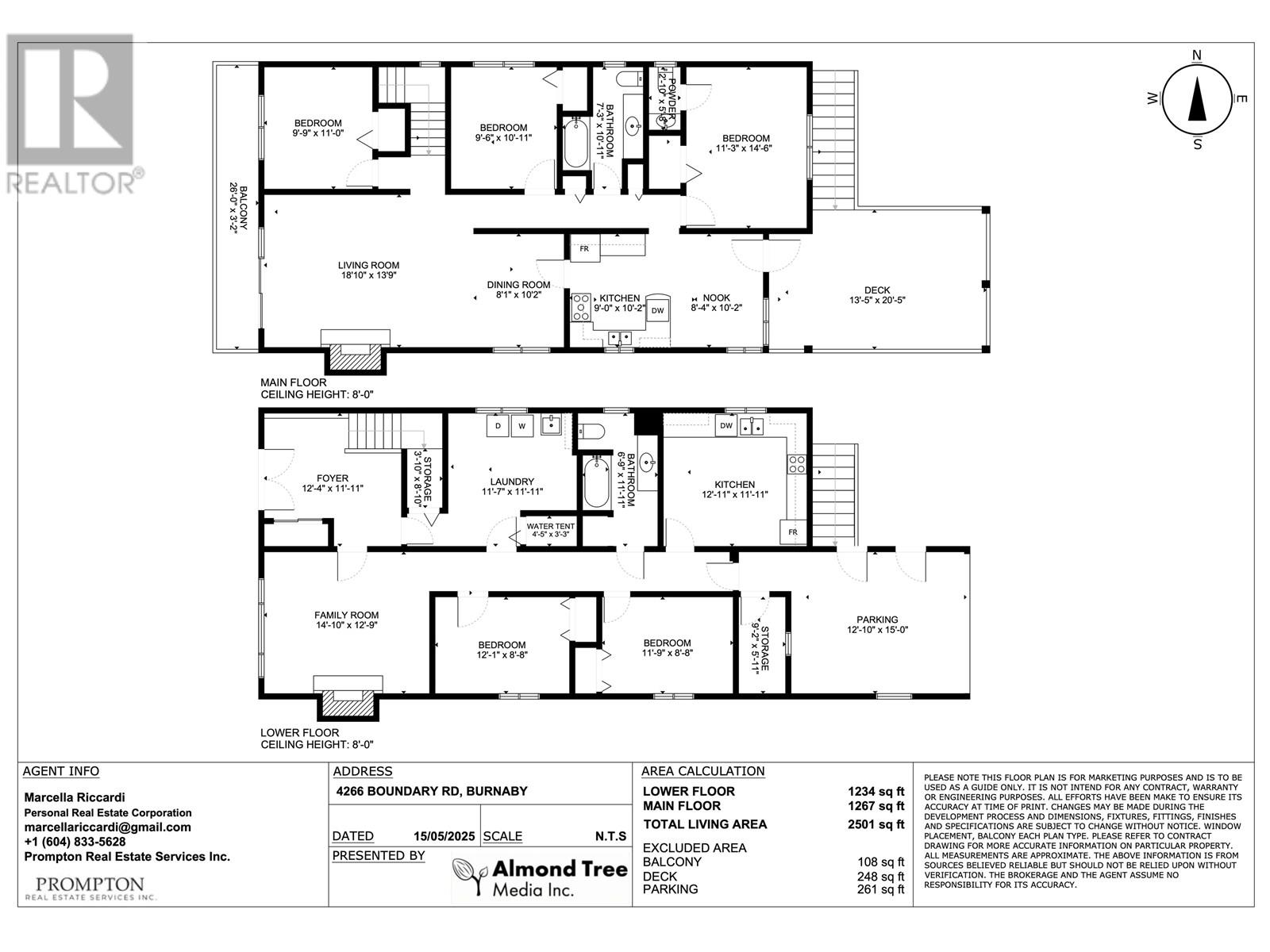
- Area 2501 sq ft
- Bedrooms 5
- Bathrooms 3
Description
Welcome to 4266 Boundary Road, a well-maintained, one-owner home built in 1973. Featuring over 2500 SQFT of space, this spacious 5-bedroom, 2.5-bathroom home offers stunning views of the city skyline and mountains. The main floor features an open concept, generous sized living spaces, and three large bedrooms. Enjoy a covered, skylit sundeck and a sunny, private backyard. The walk-out main level provides potential for extended family living or reconfiguration. The fully legal 2-bedroom suite with separate entrance and full kitchen offers excellent rental income. Located near Burnaby Hospital, parks, schools, Skytrain, and Metrotown, this home combines comfort and income potential. Bring your design ideas and book your showing today! (id:48970) Show More
Details
- Constructed Date: 1973
- Property Type: Single Family
- Type: House
- Architectural Style: 2 Level
Ammenities + Nearby
- Laundry - In Suite
- Recreation
- Recreation
Features
- Storage Shed
Location
This REALTOR.ca listing content is owned and licensed by REALTOR® members of The Canadian Real Estate Association
Data provided by: Real Estate Board Of Greater Vancouver



