- ©MLS R3007530
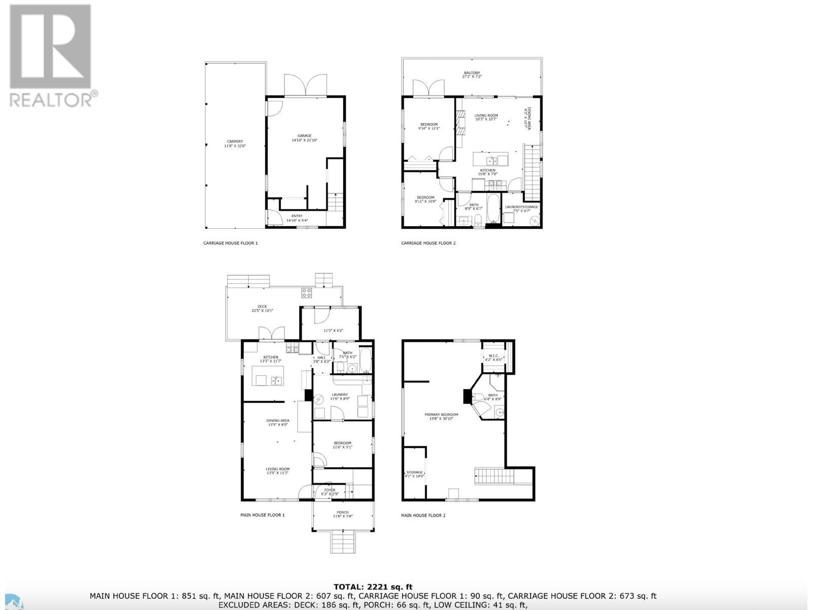
- Area 2221 sq ft
- Bedrooms 4
- Bathrooms 3
- Parkings 3
Description
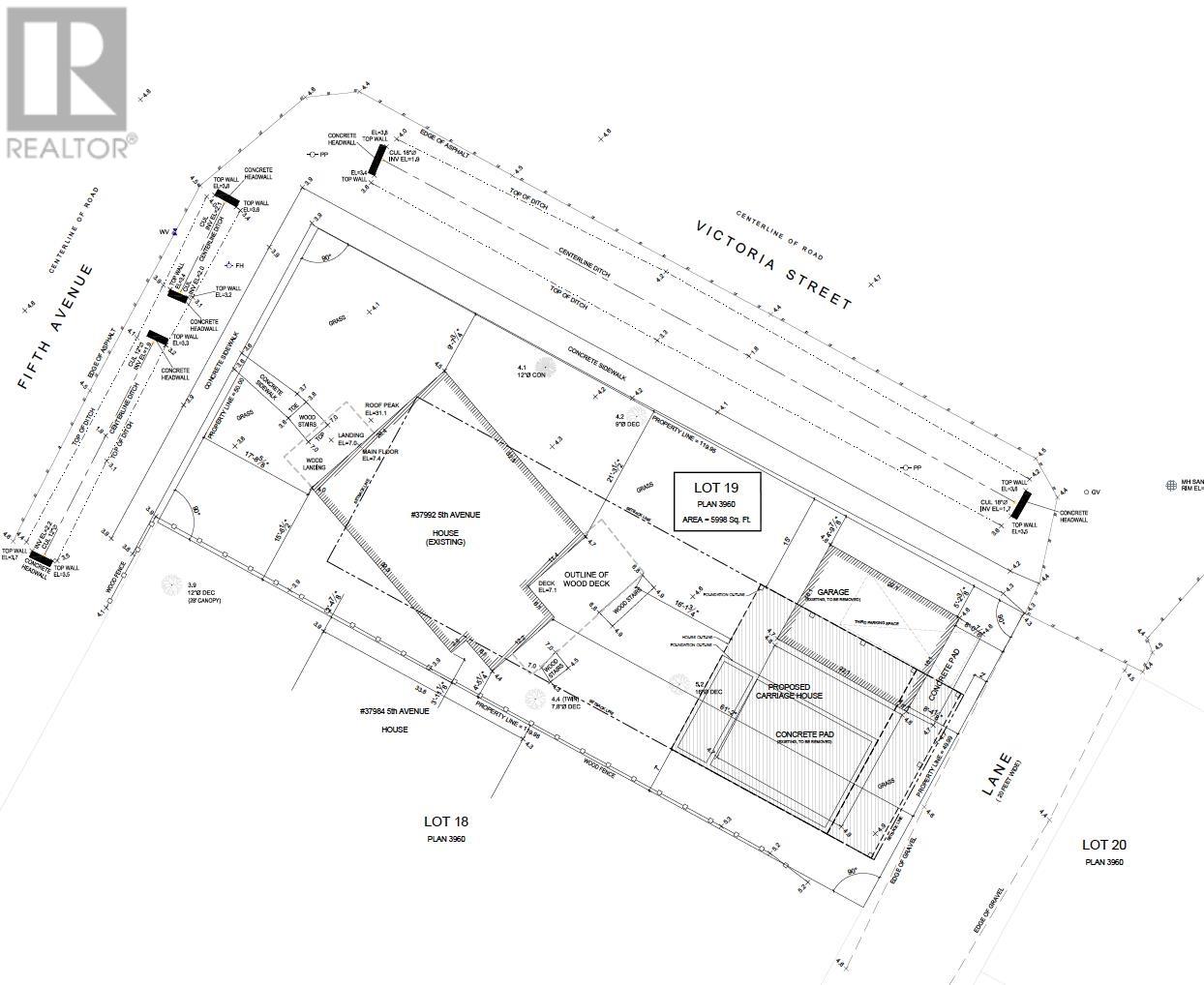
RARE property with TWO HOMES on one lot! Charming character home + new modern carriage home on a bright private 6000 SF corner lot in prime Downtown location. Unique original home situated on an angle w/Tantalus Range + Chief views, lots of original features, fir floors, front + back porches, top floor primary suite with wood posts + beams could separate into bedrooms. Carriage home by Bluewater: efficient floor plan, Chief + Smoke Bluff views, 2 bedrooms, 6 ft bathtub, attic storage, spacious deck, laundry/pantry. Single garage + carport doubles as shaded seasonal outdoor living space overlooking garden w/wisteria + gingko tree. Lots of options: revenue, live-in, convert original home. R-1 zoning guidelines. Steps to estuary, farmer's market + all amenities. By appt. (id:48970) Show More
Details
- Constructed Date: 1940
- Property Type: Single Family
- Type: House
- Architectural Style: 2 Level
Ammenities + Nearby
- Laundry - In Suite
- Marina
- Recreation
- Shopping
- Marina
- Recreation
- Shopping
Features
- Central location
- Baseboard heaters
Location
This REALTOR.ca listing content is owned and licensed by REALTOR® members of The Canadian Real Estate Association
Data provided by: Real Estate Board Of Greater Vancouver


