- ©MLS 10338409
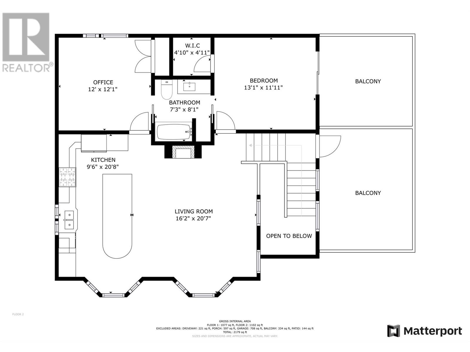
- Area 2179 sq ft
- Bedrooms 3
- Bathrooms 2
- Parkings 2
Description
2672 Mckenzie Road: if there was a place to call heaven on earth, then this is it. Located just a short distance up the hill from the lake and Sorrento. Well Established and wonderfully landscaped 2.88 acre property gives you a fantastic Shuswap Lake view. The uniquely designed 3 Bed / 2 Bath Custom home with double garage was built in 2011 and features exposed post and beam architecture. Modern Kitchen has had recent updates incorporating a large Quartz-topped Island with plenty of seating, new appliances, including gas range & wall oven. With a second Kitchen already in place on the lower level. The owners have done many rough-ins for possible future expansions and have plans in place for an addition of an attached carriage house. A lot of attention to detail has gone into making the yard into a well-cared for and calming place with various venues for enjoying the outdoor space, whether it be playing ping-pong under the pergola, or hosting a poker game at the forest table, or spending a quiet evening around the outdoor fire-pit. Treed areas have trails gently sloping into the forest below the home. Property also features hook up for back up gas Generator. 2 RV spots. The property has well water with reports available. It is zoned RR4. This is a unique and well cared for property that you won't want to leave once you've seen it. Check out the 3D tour and Video. (id:48970) Show More
Details
- Constructed Date: 2011
- Property Type: Single Family
- Type: House
- Neighbourhood: Sorrento
Features
- Private setting
- Central island
- Balcony
- Rural Setting
- Pets Allowed
- Rentals Allowed
- Lake view
- Mountain view
- View (panoramic)
- Refrigerator
- Dishwasher
- Oven - Electric
- Range - Gas
- Hood Fan
- Washer & Dryer
- Oven - Built-In
- Heat Pump
- Heat Pump
- See remarks
Location
This REALTOR.ca listing content is owned and licensed by REALTOR® members of The Canadian Real Estate Association
Data provided by: Okanagan-Mainline Real Estate Board




