- ©MLS R2987376
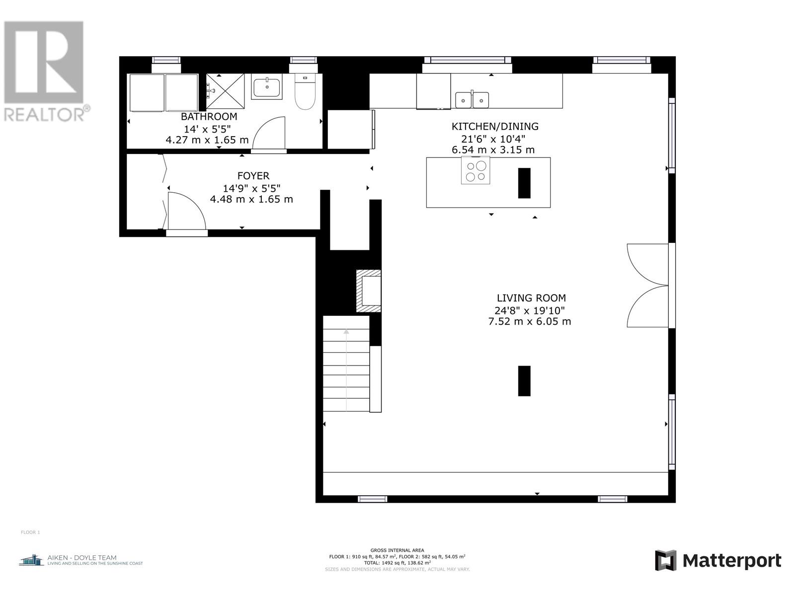
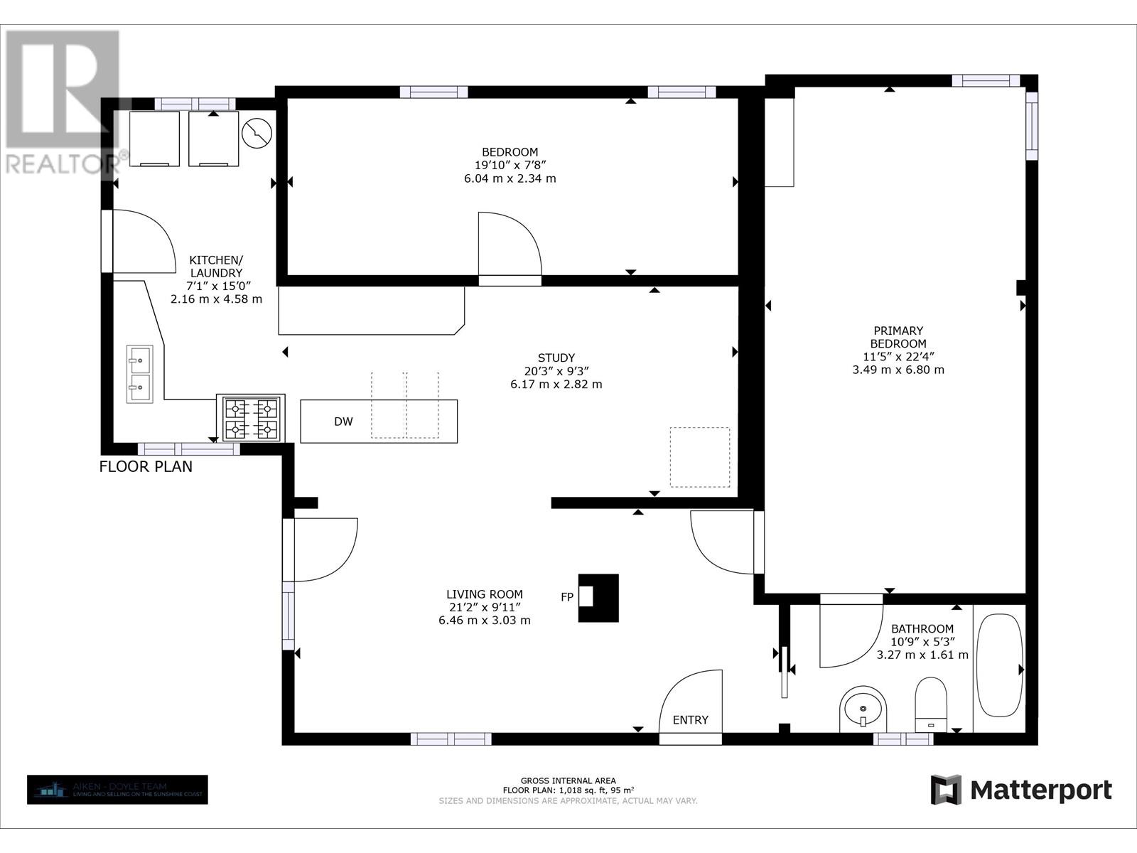
- Area 1492 sq ft
- Bedrooms 4
- Bathrooms 3
Description
3.9 Acres & 2 homes under $1M! Perched at the top of the property, a prime building site offers ocean views-perfect for your dream home! This stunning 3.9-acre Roberts Creek estate features 480 ft of highway frontage and two charming homes. The bright 2-bed, 2-bath main home boasts skylights, picture windows, black cherry engineered hardwood, stainless appliances, new carpets, a wood-burning fireplace, clawfoot tub, and a 480 square ft covered sun deck. The cozy 2-bed, 1-bath cottage includes open-concept living, skylights, newer windows, laundry, and a workshop. Enjoy a peaceful, park-like setting with a private pond. Both homes have cedar siding, metal roofs, and a new septic system. Ideal for a home-based business, family retreat, B&B, or income property-move-in ready and full of potential! (id:48970) Show More
Details
- Constructed Date: 1962
- Property Type: Single Family
- Type: House
- Architectural Style: 2 Level
Ammenities + Nearby
- Golf Course
- Golf Course
Features
- Private setting
- Rural Setting
- Baseboard heaters
Location
This REALTOR.ca listing content is owned and licensed by REALTOR® members of The Canadian Real Estate Association
Data provided by: Real Estate Board Of Greater Vancouver



