- ©MLS 1003769
- Parkings 2
Description
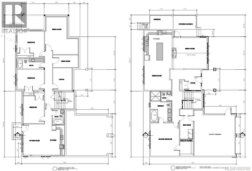
Rare Rockland offering on a Samuel McClure legacy property-Welcome to 1741 Rockland, an incredible opportunity to build your dream home in Victoria’s most iconic, prestigious & culturally rich neighbourhoods. Ideal for discerning buyers, it blends historic charm, walkability & modern luxury. The original estate was thoughtfully divided into two brand new building lots—a rare chance to build new in the heart of Rockland. Perfect location surrounded by celebrated landmarks: the Lieutenant Governor’s residence, Craigdarroch Castle & the Art Gallery. Sale includes custom building plans by Hartmann’s Drafting & Design w/ finishings by award-winning Danisha Drury Design. (Buyer can also use their own plans) This home emphasizes main-level living w/ primary suite on main plus lower level w/ office, media room, 2 more beds & 1 bed suite! Each lot is fully serviced w/ gas, water, hydro, storm & sewer and is ready for a builder of your choice. (id:48970) Show More
Details
- Constructed Date: 2025
- Property Type: Vacant Land
- Neighbourhood: Rockland
Features
- Pets Allowed
- Family Oriented
Location
Similar Properties
For Sale
$ 950,000
- 1003768 ©MLS
- 0 Bedroom
- 0 Bathroom
For Sale
$ 590,000 $ 539 / Sq. Ft.
- 1003126 ©MLS
- 2 Bedroom
- 2 Bathroom
For Sale
$ 594,900 $ 647 / Sq. Ft.
- 1006342 ©MLS
- 2 Bedroom
- 2 Bathroom
This REALTOR.ca listing content is owned and licensed by REALTOR® members of The Canadian Real Estate Association
Data provided by: Victoria Real Estate Board


