- ©MLS 1004542
- Area 3414 sq ft
- Bedrooms 5
- Bathrooms 3
- Parkings 6
Description
*SUITE POTENTIAL* Nestled on a private 2.47 acres just north of Qualicum Beach, this stunning home boasts over 3400sqft, featuring 5 bedrooms & 3 bathrooms. The main level showcases a great room layout w/ impressive 20' vaulted ceilings, floor-to-ceiling windows, a stone fireplace with insert, new flooring, & heat pump/AC, creating the peaceful sanctuary we all desire after a busy day. Upstairs, the spacious primary suite invites you in with a sitting area, walk-in closet, & ensuite. The newly finished lower walkout level offers an ideal family/playroom setting, complete w/ 2 additional bedrooms & full bathroom, also providing potential to create an in-law suite. Enjoy the serene forest & ocean views from the expansive wrap-around deck or relax in the fully fenced yard, perfect for gardening, children & pets. Ample parking for your vehicles, boats, & RV. Walk the nearby trail to Little Qualicum Falls, enjoy the convenience of Meadowood store & activities at Meadowood Community Centre. (id:48970) Show More
Details
- Constructed Date: 2005
- Property Type: Single Family
- Type: House
- Total Finished Area: 3414 sqft
- Neighbourhood: Qualicum North
Features
- Acreage
- Private setting
- Shed
- Air Conditioned
- Baseboard heaters
- Heat Pump
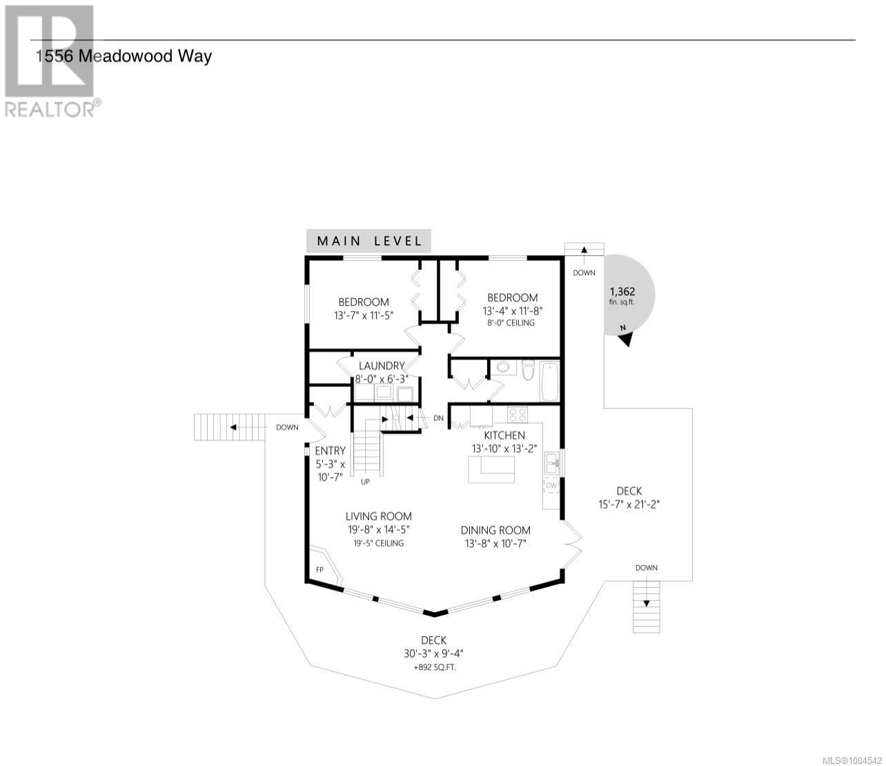
Rooms Details For 1556 Meadowood Way
| Type | Level | Dimension |
|---|---|---|
| Ensuite | Second level | 4-Piece |
| Primary Bedroom | Second level | 19'8 x 17'4 |
| Bathroom | Lower level | 3-Piece |
| Storage | Lower level | 12'11 x 4'7 |
| Bedroom | Lower level | 11'5 x 16'11 |
| Bedroom | Lower level | 11'2 x 16'8 |
| Family room | Lower level | 25'9 x 14'10 |
| Bathroom | Main level | 4-Piece |
| Laundry room | Main level | 8 ft x Measurements not available |
| Bedroom | Main level | 12'4 x 11'8 |
| Bedroom | Main level | 13'7 x 11'5 |
| Kitchen | Main level | 13'10 x 13'2 |
| Dining room | Main level | 13'8 x 10'7 |
| Living room | Main level | 19'8 x 14'5 |
Location
This REALTOR.ca listing content is owned and licensed by REALTOR® members of The Canadian Real Estate Association
Data provided by: Vancouver Island Real Estate Board



