- ©MLS R2983325
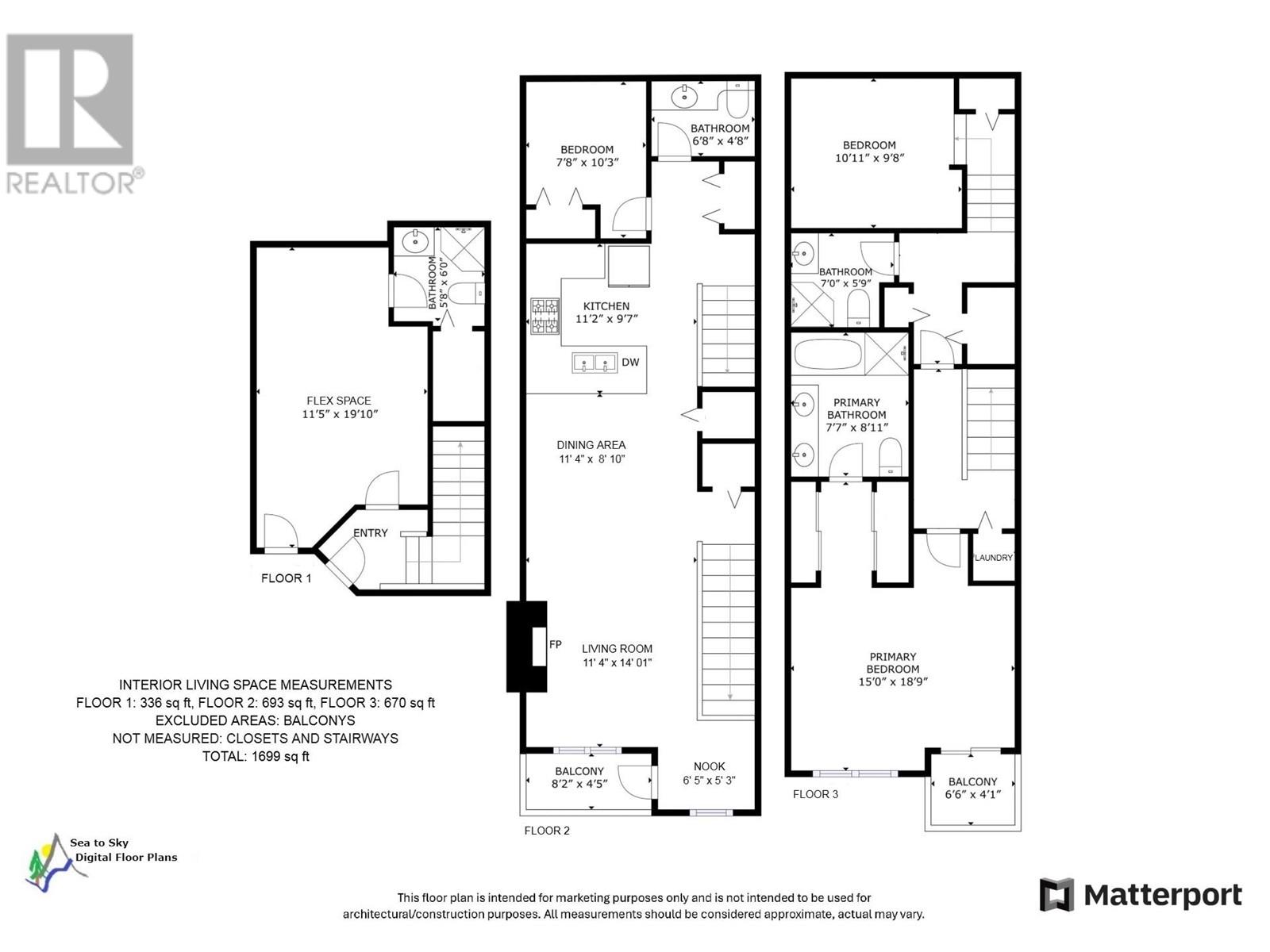
- Area 1699 sq ft
- Bedrooms 3
- Bathrooms 4
- Parkings 1
Description
Do you work from home, or are you looking for a revenue property? Then this one's for you! With a separate work space (with full bathroom) on the ground level, that you can use for yourself, use for storage, or rent out, and a 3 bedroom, 2.5 bathroom residential space above, this property offers versatility and convenience. Some features and upgrades include; hardwood floors, updated appliances, granite countertops, storage, views, and more. Ideally situated in downtown Squamish, close to shopping, schools, restaurants and the waterfront. (id:48970) Show More
Details
- Constructed Date: 2008
- Property Type: Single Family
- Type: Row / Townhouse
- Maintenance Fee: 654.30/Monthly
Ammenities + Nearby
- Laundry - In Suite
- Recreation
- Shopping
- Recreation
- Shopping
Features
- Central location
- Pets Allowed With Restrictions
- Rent With Restrictions
- Baseboard heaters
Location
This REALTOR.ca listing content is owned and licensed by REALTOR® members of The Canadian Real Estate Association
Data provided by: Real Estate Board Of Greater Vancouver


